
Van ontwerp naar bouwvergunning
Diensten
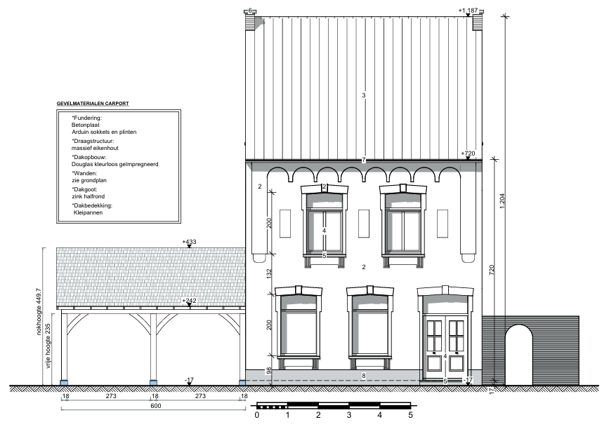
Nieuwbouw
Ontwerp, advies en opmaak van alle plannen voor het bekomen van een omgevingsvergunning voor uw nieuwbouwwoning.
Verbouwing
Ontwerp, advies en opmaak van alle plannen voor het bekomen van een omgevingsvergunning. Hiervoor zijn er plannen nodig van de bestaande toestand van het gebouw. Indien deze niet beschikbaar zijn kunnen wij dit voor u opmeten en in een plan omzetten.
Aanbouw / bijgebouw / dakkapel
Ontwerp, advies en opmaak van alle plannen voor het bekomen van een omgevingsvergunning voor uw nieuwbouwwoning. Het plaatsen van een aanbouw of bijgebouw is in sommige gevallen vrijgesteld van de medewerking van een architect.
Opmeten en digitaliseren
De bestaande toestand van uw woning kan ik voor u digitaliseren.
Bij een verbouwing of uitbreiding van een bestaand gebouw dient er een tekening te worden gemaakt van hoe het gebouw op dat moment is.
Deze tekening wordt gebruikt als onderlegger bij de verbouwingsplannen, om de tekening van de bestaande situatie te kunnen maken wordt het bestaande gebouw in gemeten.
Verkoopplannen
Wenst u een pand te verkopen en bent u op zoek naar een visuele aantrekkelijke presentatie?
De kleurrijke en visueel aantrekkelijke verkoopplannen spreken makkelijker potentieële verkopers aan door hen een realistischer beeld te geven. Net omwille van deze troeven doen immokantoren en architecten dan ook graag beroep op deze service.
3D-renders
Bij het ontwerpproces speelt 3D visualisatie een belangrijke rol. Daarom is deze service van belang voor zowel achitecten, ontwerpers als kopers. Ieder ontwerp wordt omgezet naar realiteit waarmee u een beter zicht krijgt op uw project.
Contacteer ons voor een offerte op maat
tekenbureaujanssens.be
Heilaarstraat 66/1, 2340 Beerse
+32 496 99 69 82
jorg.janssens@hotmail.com
Bank: Argenta
IBAN: BE25 9733 9267 0582
BIC: ARSPBE22
BTW: BE 0752.946.365
Creativiteit en persoonlijke begeleiding tot uw dienst.
Mijn werk!








